


2344、2347系列雙向推力角接觸球軸承
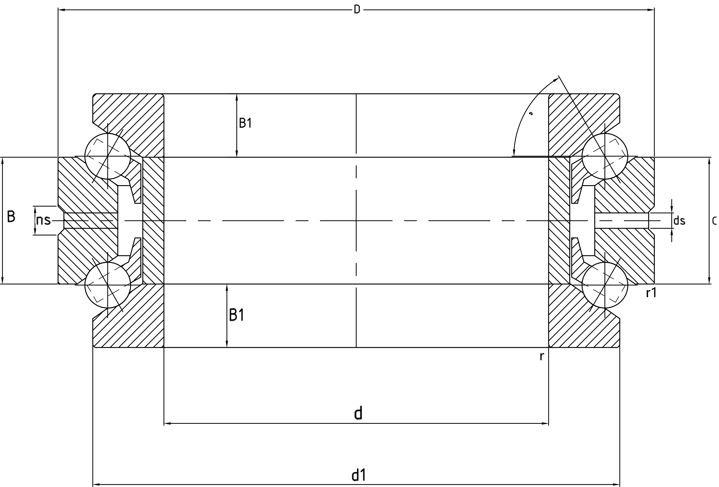
雙向推力用接觸球軸承由兩個軸圈、一個座圈、一個隔套和兩列滾動體及保持架組件組成。修磨隔套的厚度即可調整軸承的間隙和預緊。軸承的接觸角為60°。該軸承的公稱外徑和與其配套的雙列圓柱滾子軸承的外徑相同,但外圈與箱體孔之間有間隙,因而,雙向推力角接球軸承不承受徑向載荷,與雙列圓柱滾子軸承配套使用以承受雙向軸向載荷。
雙向推力角接觸球軸承分2344和2347兩個尺寸系列,2344系列軸承用于與雙列圓柱滾子軸承錐孔小端配合,2347系列用于大端。






咨詢電話:
掃一掃咨詢微信客服